Choosing the right location for your dream home is a crucial decision in the building process. One option that stands out for its unique benefits is building on a corner block. While every block has its advantages, corner blocks offer distinct opportunities that can enhance the functionality, aesthetics, and value of your property.
Enhanced Street Appeal
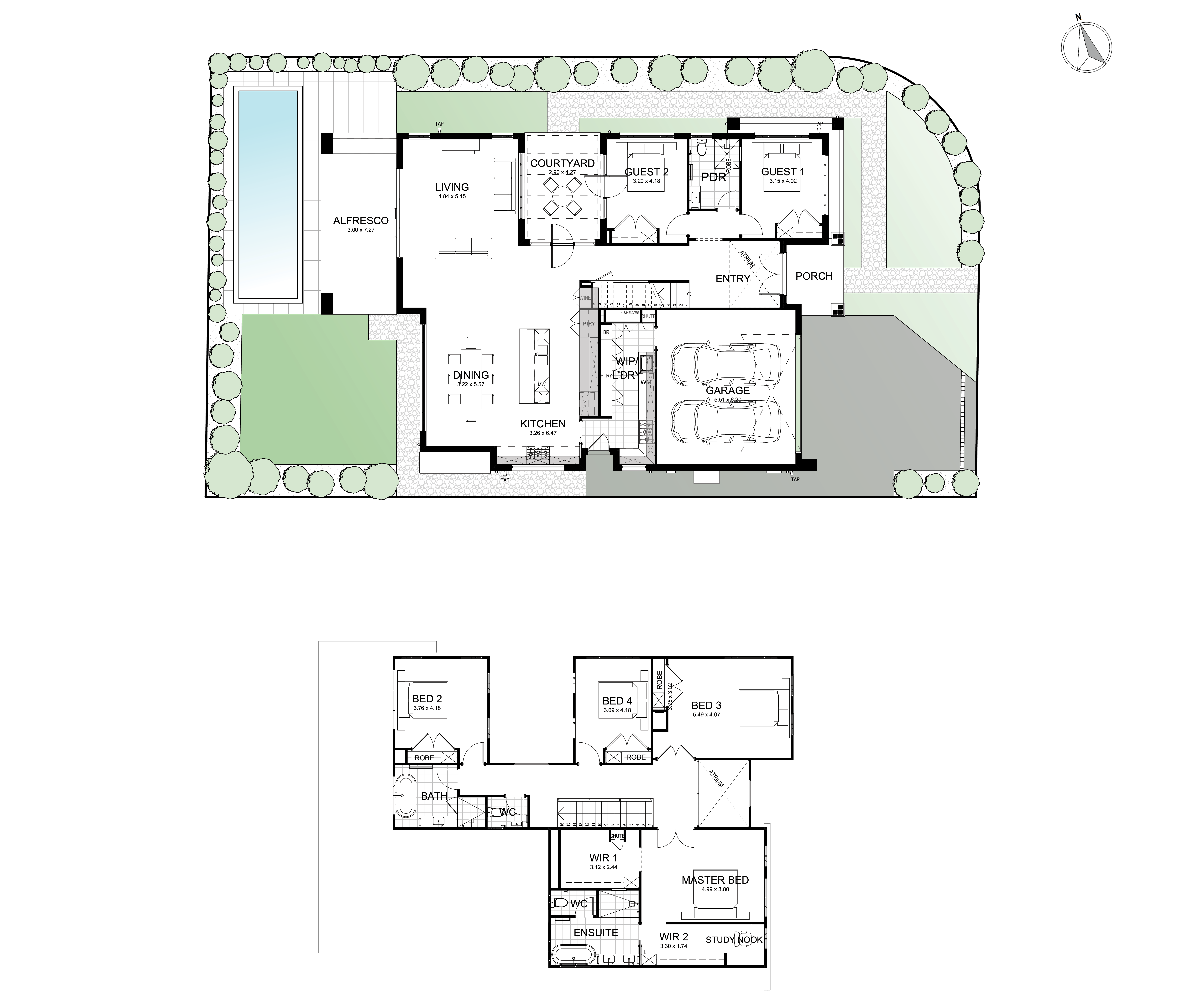
Corner blocks provide the opportunity to have dual street frontages, significantly increasing the visual impact of your property. This allows for a more dynamic and attractive facade, elevating your overall street appeal. The additional frontage also provides more design possibilities, allowing for creative landscaping, entrance designs, and architectural features.
Flexible Design Options
One of the most significant advantages of corner blocks is the flexibility they offer in terms of design. With two street frontages, you have more freedom to position your home on the block and orient it to maximise natural light, ventilation, and privacy. This flexibility opens up a world of possibilities for unique floor plans, outdoor spaces, and the overall layout of your home.
Increased Privacy and Natural Light
Corner block floor plans often enjoy better natural light and ventilation options. By strategically placing windows and outdoor areas, you can take advantage of the sun's path throughout the day, optimising the use of natural light. Additionally, with only one adjoining neighbour, you may experience increased privacy.

Potential for Dual Access
Corner block house designs typically allow for the creation of a secondary entrance, which can be beneficial for various reasons. For instance, having a separate entrance for a home office or a granny flat can provide added convenience and accessibility without disrupting the main living spaces. This dual access can also be advantageous for future renovations or expansions.
Land Use Efficiency
Corner block house designs often have more flexible zoning regulations, enabling you to make the most efficient use of the available land. This can be especially advantageous if you have specific plans for landscaping, outdoor amenities, or additional structures on your property. Utilising the space effectively can result in a more functional and aesthetically pleasing home.
Potential for Higher Resale Value
The unique features and advantages of corner blocks can contribute to increased property value. Homes with dual street frontages, thoughtful design, and enhanced street appeal are often more attractive to potential buyers, making your property a sound investment for the future.
Overcoming Challenges of Corner Block Floor Plans and House Designs
-
Irregular Shape and Sloping Terrain
Corner blocks often come with irregular shapes and sloping terrain, posing a challenge in designing and constructing a home that maximises both functionality and aesthetics. The irregularity may require innovative design solutions to make the most of the available space and create a cohesive architectural plan. -
Privacy and Street Interaction
With dual street frontages, there is an increased challenge in managing privacy. Proper placement of windows, outdoor spaces, and entry points becomes crucial to strike a balance between openness and privacy. It requires thoughtful design to ensure that the home feels secure and secluded while still engaging positively with the surrounding streetscape. -
Zoning and Planning Regulations
Corner blocks may be subject to different zoning and planning regulations due to their unique positioning. Navigating these regulations can be a challenge for builders and homeowners alike. Compliance with setback requirements, dual access considerations, and other regulatory aspects adds an extra layer of complexity to the building process, requiring careful attention during the planning stages.
Building your home on a corner block shouldn't come with compromise. We encourage all of our clients to explore their design options with our team of design and compliance professionals who have years of experience with corner block homes.
Related articles
Navigating Knockdown Rebuild Budgets
The Crucial Role of Early Compliance
Hall & Hart: Knockdown Rebuild Specialists
Aligning Your Custom Home Budget with Your Design Aspirations

