Embarking on a Personal Design Journey
Designing a home is a personal journey that involves exploring your creativity and experimenting with different styles and materials to create a unique space for you and your family. The design process requires thoughtful consideration of your needs, desires, and budget. Each design decision, from the facade to the floor plan, will influence how you interact with the space and how others perceive it. While the responsibility of designing a home can be daunting, it is also an incredibly rewarding experience.
The design process evolution, one that constantly evolves and adapts based on new insights, feedback, and ideas. One of the first decisions you will need to make is whether to prioritise the facade or the floor plan. Both are essential elements of any home building design, but they serve contrasting functions and require careful consideration.

(Chatswood, NSW )
The Floor Plan: The Foundation of Home Design
While our initial attraction to stunning facades is undeniable, it's recommend that the floor plan should be the starting point for any new home design. The floor plan defines the interior spaces' layout and arrangement, including the rooms, corridors, and functional areas. Getting the floor plan right is critical because it sets the foundation for the entire project. You must ensure that it meets your needs, provides the necessary functionality, and accommodates your lifestyle or work requirements.
Before considering the facade's design, you must have a clear idea of what you want to achieve with your home, how you plan to use it, and the number of people who will be using it. This information will determine the size of the rooms, the placement of doors and windows, and the flow of traffic within your home. Once you have a solid floor plan, you can then move on to the facade's design, which will help you achieve the desired look and feel of your home.

(Wahroonga, NSW )
The Importance of Aspect in Floor Design
A crucial element to consider in floor plan design is the aspect of the home. The aspect refers to the orientation of the home in relation to the sun, wind, and other environmental factors. In Sydney, where the climate is often warm and sunny, it's essential to consider the home's aspect to maximize natural light and ventilation.
-
North-facing rooms, for example, receive more sunlight, making them ideal for living areas and bedrooms.
-
East-facing areas receive morning sun, perfect for breakfast nooks or home offices, while west-facing homes receive afternoon sun, ideal for outdoor entertaining areas.
-
South-facing rooms receive less sunlight, making them suitable for utility areas such as laundry rooms or garages.
By considering the aspect in floor plan design, homeowners can optimize energy efficiency, reduce heating and cooling costs, and enhance their overall comfort and enjoyment of their home.

(Lindfield, NSW )
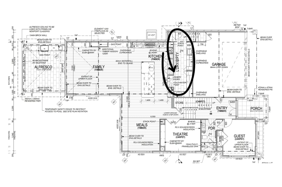
Castle Cove Residence Master Butler's Pantry
Our clients in Castle Cove had a strong desire to create the perfect space for entertaining their family & friends, and they turned to us to bring their vision to life.
As experts in custom-built homes, we knew exactly how to design and build their dream Hamptons style home that would cater to their passion for entertaining. Taking inspiration from the renowned Chelsea floor plan, our team of architects and designers worked closely to develop a layout that would enable our clients to host both large & small events and prepare food without worrying about any messiness. With careful planning and attention to detail, we were able to create a space that seamlessly combines functionality and style, making it the perfect backdrop for their gatherings with family and friends.
The end product was a true masterpiece - a luxurious, oversized butler's pantry and laundry room combination that was expertly hidden behind a set of double doors. The design was flawlessly executed, with the doors blending seamlessly with the bespoke kitchen cabinetry, creating a cohesive and stylish look. The double doors not only added to the overall aesthetic of the space but also provided a clever solution for concealing the pantry and laundry room, allowing for easy access while keeping them out of sight when not in use. This was a design feature that truly showcased the level of expertise and attention to detail that went into creating this stunning custom-built home.





At Hall & Hart, we understand the importance of a well-designed floor plan. That is why we offer a range of architecturally pre-designed options crafted by our experienced internal designers and architects. This helps save you time and eliminates decision fatigue during the design process. It's essential to consider what's important to you, whether it's a master bedroom at the rear, grand alfresco for entertaining, or extended ceiling heights. With the right floor plan, you can create a home that perfectly suits your lifestyle and design preferences.
The Facade: The Face of Your Home
The facade serves as the first impression of a home, the street appeal that welcomes visitors and passers-by, creating a sense of "home sweet home" as we drive up the driveway. It is the visual identity that reflects our craftsmanship and establishes the tone for the remainder of the home's design. Not only does a well-designed facade make a significant impact on your home’s overall appearance, it can also improve its energy efficiency, comfort, and safety.

(Seaforth, NSW - In construction)
However, the facade's design needs to complement the floor plan and support its function. For example, the facade's orientation and placement of windows should take into account the homes purpose and the need for natural light and ventilation. The materials used in the facade's construction should also be chosen based on their durability, maintenance requirements, and compatibility with the home's interior design.

(West Pennant Hills, NSW - In construction)
Why the Floor Plan Comes First
Starting with the facade's design can lead to issues with the home's functionality and efficiency. You may end up with awkwardly shaped rooms or wasted space if the facade does not align with the floor plan's needs. Additionally, designing the facade first can limit your options for the floor plan, as you may need to adjust the layout to fit the facade's design.
Deciding to build a new home is a personal choice that often begins with falling in love with a facade. However, the real work begins when you start looking for a floor plan that suits your family's needs and budget. During the design process, you collaborate with your designers to tailor options that cater to your personal requirements and functionality. As the floor plan forms the basis of your liveable space, it's essential to prioritise it before moving on to the facade's design. Although the facade is what initially draws you in, the emphasis is on the floor plan as it determines the functionality and liveability of your home, while the façade’s design should support and enhance the floor plan’s objectives.
Our Holistic Approach to Design
Our design and construct process has been carefully crafted based on years of experience designing custom knock down rebuild (KDR) homes that prioritise the customer experience.
At the heart of our design process is the integration of key disciplines such as compliance, architecture, interior design, and construction. By involving these crucial areas from the beginning of the development process, we ensure a holistic design that aligns with our client's lifestyle aspirations while optimizing against any site, compliance, and budgetary constraints.
Discover more...
