Natural | Minimal | Geometric | Free flowing
Humans have an innate urge to connect with nature…which is why great design brings nature inside! Our award-winning Clifton display home at HomeWorld Box Hill places a strong emphasis on nature, space and light, creating an oasis in the middle of the urban jungle.
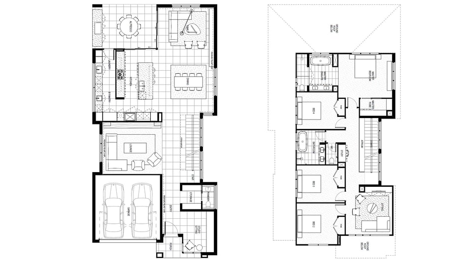
The Clifton is a versatile home that suits an array of lifestyles. Nick Rawson, one of Hall & Hart’s directors, says that “the Clifton design is completely adaptable to different block widths and depths.”
“That makes it perfect for knockdown rebuild projects in the inner west of Sydney or new estate purchases with mid-range budgets.”

The design is a great example of stylish minimalism. The kitchen, dining, alfresco and family room on the ground floor have an open plan layout, allowing freedom of movement and easy living. 
A Vibrant Aesthetic
The interior design in the display home will appeal to a vibrant, hip audience who appreciate great design that also harnesses natural elements.
The connectivity and flow on the ground floor create openness, while the straight staircase leading up from the dining area is a stunning visual feature and vertical juxtaposition.

Up on the first floor of the Clifton, there’s also a feeling of space and ease. There’s a large rumpus room that’s ideal for hanging out, reading or watching movies.
It’s the thoughtful, modern touches that make this house special. For example, the rumpus room features in-built joinery that can be used as a cupboard and vanity for the TV…but also extends on a right angle to the front window to form a bench for reading or watching movies on the iPad.

Modern Minimalism and Earthy Tones
The interior design of the new Clifton display home in Box Hill is focused on minimalism and native colour tones.
A feeling of modernity is created with geometric features and clean, sharp lines that are softened by timber joinery and large windows to let in natural light. While ‘modern’ design has previously focused on industrial fittings, the Clifton uses earthy tones and light instead, evoking nature.
The geometric patterns also bring the outdoor indoor, echoing patterns found in nature. Timber joinery features strongly throughout, softening the grey geometric tiles and brickwork for an interesting contrast.

Thoughtful Adaptation Makes a Beautiful Home
Working with leading design practice DKO Architecture, we’ve thought about the smallest details in the Clifton.
For example, throughout the ground floor, we have dropped the ceiling 50mm to allow for curtains and LED lighting to be hidden in the ceiling junctions.
The straight staircase is also a strong focal point. Designed with open treads and on a stringer, the staircase runs from the dining room to the first floor. It is adjacent to large open windows, which creates a symbiotic connection between the outside and the inside.

Like all our homes, the Clifton can be adapted to your taste and style.
“The façade lends itself to a really bold modern theme,” says Nick Rawson. “However, the change to a more classical themed façade would open up great opportunities internally to play around with different styles and themes with the open plan layout.”
When you build with Hall & Hart, you’ll work with a dedicated Interior Designer and Colour Consultant at our Design Studio to create your ideal style.
Love this display home? Recommended selections from our suppliers to achieve the look:
Dekton Natural Bromo
Austral Bricks GB Smooth Nickel
Phoenix Tapware Vivid Bathroom Accessory Range
Polytec Tumber Antico Oak Woodmatt
Related content
Hall & Hart: Master Builders Association - National Finalist and Display Home Winner
Hall & Hart: Modern Design Collection