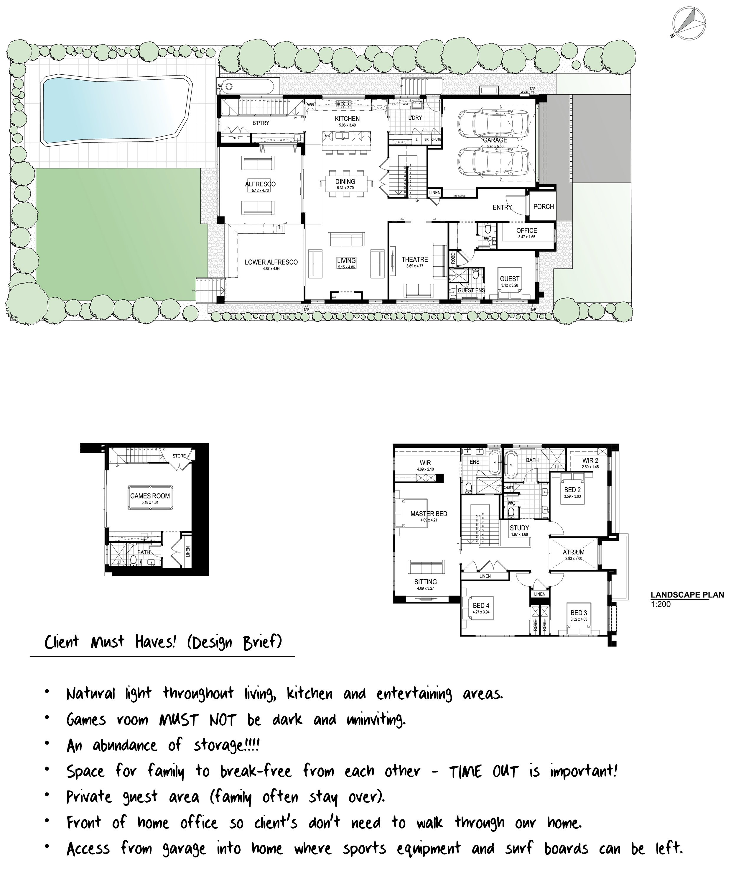
Senior Designer Marko highlights features from a recent design of a 42 sqm custom plan crafted for a busy family engaged in remote work and hosting gatherings.
Marko incorporates orientation and aspect to cleverly design private retreats for parents, children, and guests, ensuring a seamless blend of functionality and the integration of essential features outlined in the client's design brief.

Embracing Natural Light
Bathed in the morning sun, the kitchen, alfresco, lower alfresco, dining, and living areas are adorned with ample natural light. The lower games room, a break-free area downstairs, is generously illuminated.
Stylish and Functional Elegance
A butler's pantry descends to the games room, a versatile space that can easily transform into a bedroom with its ensuite and walk-in robe. Clever storage hides beneath the butler's stairs, providing practicality and style. The games room seamlessly connects to the inviting pool area.
Sophisticated Convenience
A private guest haven is nestled on the ground floor, separated from the main living areas. The garage opens into a combined mudroom/laundry, providing convenient access straight into the heart of the home – the kitchen. Wine storage beneath the main stairs, adjacent to the dining and kitchen areas, adds a touch of sophistication.
Elevated Living
In response to compliance requirements, Marko crafted a visually stunning two-level alfresco, ensuring a seamless transition into the backyard. Upstairs, a luxurious 7.4m parents' retreat complete with a relaxed sitting room for added comfort.
Related Content
Hall & Hart: The Crucial Role of Early Compliance
Hall & Hart: Custom Landscape Plans Gallery
Hall & Hart: Knockdown Rebuild Specialists
Hall & Hart: Orientation. Harnessing the Sun's Movement