Stunning Contemporary Family Residence
A stunning completed Hall & Hart Home produces impressive family residence located amongst the leafy, tree-lined streets in the friendly Sydney suburb of Wahroonga.
This outstanding knockdown rebuild Hall & Hart Home showcases contemporary finishes and expert craftsmanship throughout every room of this light-filled family home.

Here is your chance to walk through a completed Hall & Hart Home.
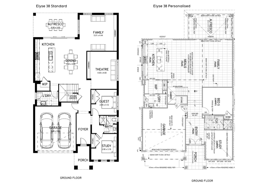
The Elyse 38 Contemporary home boasts a grand facade featuring concrete roof tiles (Camelot Atura by CSR Monier), a rendered Hebel facade in Taubmans 'Smooth Pebble' paired with a subtle contrast for the eaves, portico and balcony lining in Taubmans 'Cotton Sheets' plus detailed corbelling.
Our architectural design team took advantage of the sloping to front block and designed a home to maximise the land. Upon waking into the home you are greeted with impressive 6.1m high ceilings (entry void) which neatly steps down into the family and meals light filled area. The design allowed for a split-level home with different ceiling heights between living zones, combining spacious living areas with a seamless flow between the inside and outside living areas.

Our clients embarked on our Personalised Custom Design process which allowed them to make non-standard design changes to our standard architectural Elyse 38 design, these included converting the guest bedroom to an additional bedroom on the ground floor, larger rooms overall and repositioning of the alfresco, to name a few.

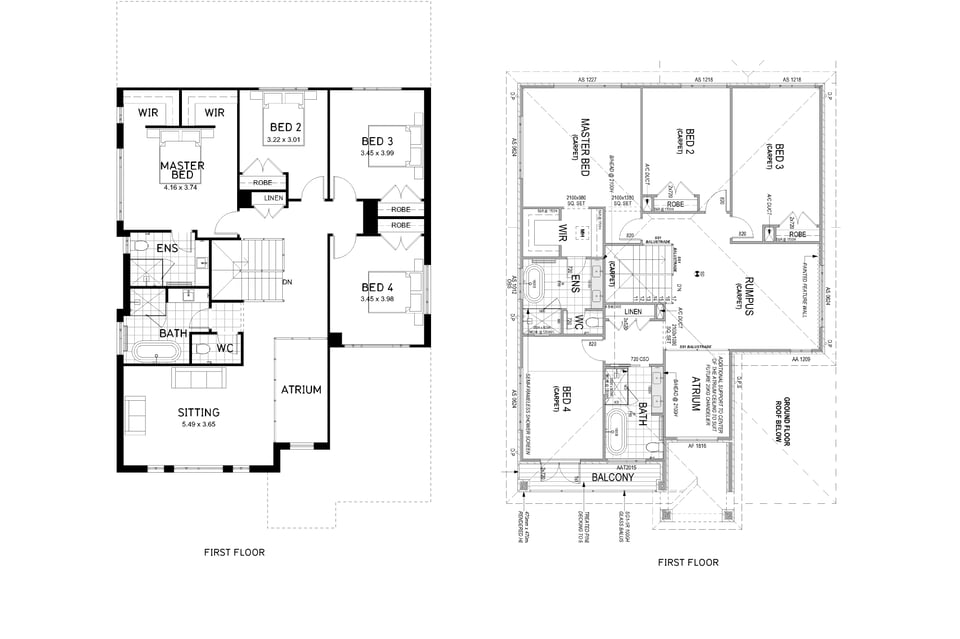
The design changes continue to the first floor where the client's opted to move the master to the rear with his and her walk-in robes, bedroom 4 and sitting (teenage rumpus) mirrored and repositioning the bathroom.
(Oversized teenage retreat below)

Other features include statement lighting, open-plan kitchen with stone bench with waterfall ends, SMEG 900mm appliances, freestanding dishwasher, gas cooking, window splashback and large walk-in pantry.

A lavish master bedroom with walk-in robe with his and her ensuite featuring Caroma Luna accessories including Caroma Aura freestanding bath, polished edge mirror, semi-frameless showscreen, full height tiling (Nova Carrara Bianco 300x600 tile by Beaumont Tiles) and tiled splashback (Expan Fan White Satin Structured tile by Beaumont Tiles)

If you thinking of a knockdown rebuild be inspired by our client's before and after photos or walk through this stunning, family Hall & Hart home before it goes to auction this Saturday!
Auction Details:
Saturday, 7th October at 5:00pm
127 Coonanbarra Road, Wahroonga, NSW 2076
Build a you home.
